Продается база на Добрушской
|
Цена: Реализован
Объект № 97917
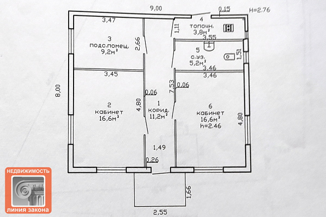
Продается производственная база на ул. Добрушской. Общая полезная площадь строений 592,6 кв.м.: 1. административно-хозяйственное здание (офис) 2014г.п., 62,6 кв.м., построено из СИП-панелей с кровлей из металлочерепицы, 1 уровень, 2-3 кабинета, санузел, топочная с котлом на твердом топливе, окна и перегородки ПВХ, металлические входные двери, телефон, хорошее состояние; 2. неотапливаемый металлический ангар с кирпичным цоколем 1989г.п., 530 кв.м. под размещение производства или (и) ведение складского хозяйства. Участок площадью 32 сот. на праве постоянного пользования с возможность подъезда и разворота фур, электроснабжение 220В и 380В, центральный водопровод, местная канализация. Возможные назначения использования: автосервис, производственная база, склад. Цена продажи базы: эквивалент 50 000 дол. США без НДС. Рассмотрим вариант сдачи в долговременную аренду. По всем вопросам обращайтесь к ответственному сотруднику: Скрябин Владимир +375 (29) 352-36-24 |
Параметры
Описание
Фото
Планировка
Виртуальный тур
На карте
Продается производственная база на ул. Добрушской. Общая полезная площадь строений 592,6 кв.м.: 1. административно-хозяйственное здание (офис) 2014г.п., 62,6 кв.м., построено из СИП-панелей с кровлей из металлочерепицы, 1 уровень, 2-3 кабинета, санузел, топочная с котлом на твердом топливе, окна и перегородки ПВХ, металлические входные двери, телефон, хорошее состояние; 2. неотапливаемый металлический ангар с кирпичным цоколем 1989г.п., 530 кв.м. под размещение производства или (и) ведение складского хозяйства. Участок площадью 32 сот. на праве постоянного пользования с возможность подъезда и разворота фур, электроснабжение 220В и 380В, центральный водопровод, местная канализация. Возможные назначения использования: автосервис, производственная база, склад. Цена продажи базы: эквивалент 50 000 дол. США без НДС. Рассмотрим вариант сдачи в долговременную аренду. Договор на оказание риэлтерских услуг №550/1 от 18.08.2021г.
Продается производственная база на ул. Добрушской. Общая полезная площадь строений 592,6 кв.м.:
1. административно-хозяйственное здание (офис) 2014г.п., 62,6 кв.м., построено из СИП-панелей с кровлей из металлочерепицы, 1 уровень, 2-3 кабинета, санузел, топочная с котлом на твердом топливе, окна и перегородки ПВХ, металлические входные двери, телефон, хорошее состояние; 2. неотапливаемый металлический ангар с кирпичным цоколем 1989г.п., 530 кв.м. под размещение производства или (и) ведение складского хозяйства. Участок площадью 32 сот. на праве постоянного пользования с возможность подъезда и разворота фур, электроснабжение 220В и 380В, центральный водопровод, местная канализация. Возможные назначения использования: автосервис, производственная база, склад. Цена продажи базы: эквивалент 50 000 дол. США без НДС. Рассмотрим вариант сдачи в долговременную аренду. |
|||







+375 (29) 352-36-24
