Дом, аг Носовичи, ул. Полевая, Добрушский р-н
|
Цена: 24 347 бел. руб.
8 500 у.е.
-->
Цена за кв.м: 384 бел. руб. Эквивалент цены (справочно) по курсу НБ РБ: За объект: 8 500 дол. США За 1 кв.м. 134 дол. США Все расчеты по сделке в соответствии с законодательством производятся в белорусских рублях
Объект № 99852
Есть сарай, погреб. Приглашаем на просмотр. По всем вопросам обращайтесь к ответственному сотруднику: РУДЕНКОВА Елена Леонидовна +375 (44) 511-22-11Объект под №: 99852
По вопросам обращайтесь:
Администратор Admin |
Параметры
Описание
Фото
Планировка
На карте
Связаться со специалистом
Дом.
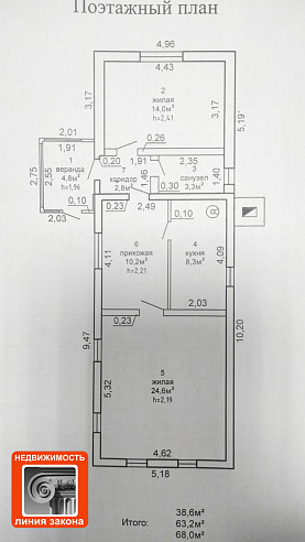
Количество комнат (всего/изол.) — 2/2
Есть сарай, погреб. Приглашаем на просмотр.
Заявка на просмотр |
|||








+375 (44) 511-22-11
Администратор Admin
